

翻车机干雾除尘系统
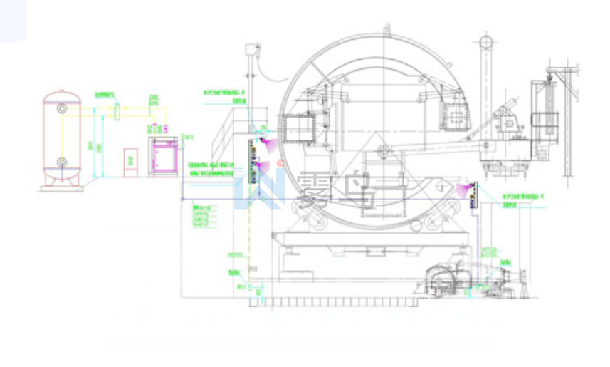
翻车机的微米级干雾抑尘系统由水箱、多级过滤恒压供水站、空气压缩机、储气罐、微米级干雾抑尘主机、干雾箱控制器、喷雾箱、雾化管道、集中控制系统、配电箱等组成。 在翻车机倾翻侧上面安装5套ST2-7-60干雾箱总成,1套STK-A干雾箱控制器,1套STK-W干雾箱控制器,在倾翻侧下面安装3套ST2-7-60干雾箱总成,1套STK-A干雾箱控制器,1套STK-W干雾箱控制器,在背翻侧设计安装6套ST2-7-60干雾箱总成和1套SKT-A干雾箱控制器、1套SKT-W干雾箱控制器,干雾箱总成喷雾时间30s,周期2min。

翻车机指一种用来翻卸铁路敞车散料的大型机械设备。可将有轨车辆翻转或倾斜使之卸料的装卸机械,适用于运输量大的港口和冶金、 煤炭、 热电等工业部门,翻车机在工作时没法进行密封,在敞开的环境下很容易产生粉尘,并且翻车机一般体型较大,工作时翻车机会带动气流,这是会产生大量的粉尘,这些粉尘在敞开的环境下会很快向外扩散,造成厂区污染,且影响工人正常工作。

翻车机在倾卸物料时,粉尘与粉尘、粉尘与翻车机之间产生碰撞和挤压,半封闭空间中的空气波动,产生运动,粉尘剪切压缩造成尘化。物料在空气中以一定的速度运动时,能带动周围空气随其一起流动,这部分空气称为诱导空气。诱导空气又会卷吸一部分粉尘,随空气一起流动,产生诱导尘化原因。长方体的列车车厢,在翻车过程中,会绕某一轴随翻车机一起转动,车厢的两个侧面和地面好像三面扇子,绕轴做旋转运动,因而会在车厢周围产生一股旋转气流,这股气流会携带下落过程中的粉尘一起运动,产生尘化。这些粉尘会对厂区环境造成影响,因此需要相应的除尘设备进行除尘。

水箱容量根据现场情况来定,一般从4立方-10立方,可以采用连续供水或者定时定点供水。多级过滤恒压供水站将水箱内的供水多级过滤后,通过水泵加压,保证压力恒定,输送至干雾主机内。空气压缩机产生压缩空气,经过储气罐缓冲,输送至干雾主机内。干雾主机对供水和供气进行检测调节,按照设定的压力和流量输送至各个干雾箱。

